Pedestrian Footbridge Project
Luca Caruana
An Other Design Studio
Yanica Grech
Adaptive Reuse of Villa Guardamangia
Myron Saliba
Transforming Public Open Spaces Through Nature-Based Solutions
Kurt Mizzi
Roof Canopy Project
Raul Cauchi
A Desirable Real
Yanica Grech, Lara Spiteri, Daniela Mizzi, Marie Claire Attard
Reimaging Urban Open Spaces
Grech Lara, Laudi Lara, Mizzi Kurt, Jake Sant
A nearly Zero Energy residence
Matthew Cachia Fearne
Planning and Designing Urban Open Spaces as Green and Blue Infrastructure
Lara Aguis, Vincelle Muscat, Nina Riolo
Lara Agius
Vincelle Muscat
Nina Riolo
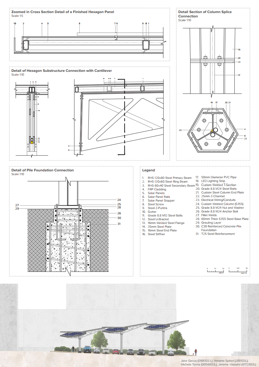
Design of Green Energy Solar Integrated Parking Solutions
Luca Caruana, Eleanor Hili, Claire Pace, Kacey Sammut
Jake Govus, Melanie Spiteri, Michela Tonna, Jerome Vassallo
Jamie Azzopardi, Clarissa Cremona, Nicholai Falzon, Michaela Melillo
Gateway to Ghar Dalam: Design of a Visitor's Centre
Matthew Attard
John Anastasi
MILANO VOIDS
Michael Meneghni
Daniela Mizzi
Matthew Cachia Fearne
