MASTERS IN ARCHITECTURE
SUMAYA BEN SAAD
GIANLUCA ABELA, JASMINE AZZOPARDI, ESTHER SCICLUNA, TARA ZIKIC // AN EATERY FOR PERSONS WITH A DISABILITY
SUMAYA BEN SAAD, STEFANO PACE PARASCANDALO // PARADISE
OWEN DEGIORGIO, MARTINA CHETCUTI
LUKE SCICLUNA, TARA ZIKIC
STEPHAN BORG // IL-PONT
MARTINA CHETCUTI
LUCA ZARB
MASTERS IN STRUCTURAL ENGINEERING
KURT DEMICOLI
REBECCA MIFSUD
KURT CIANTAR
NIGEL BORG
JOHN PAUL AQUILINA
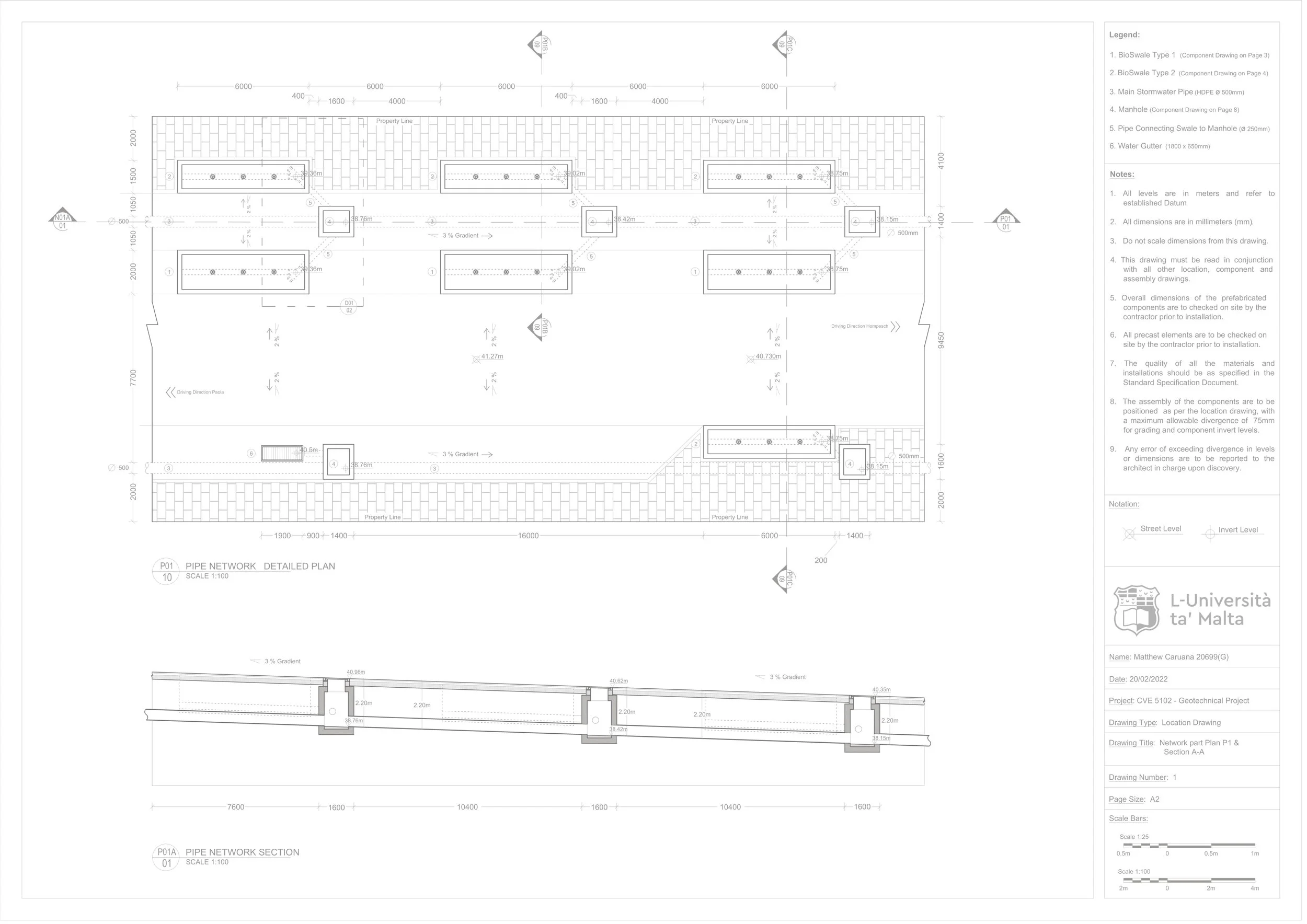
MATTHEW CARUANA
LUKE BARTOLO
ISAAC ZAMMIT
